Realestateforsaletauranga

powered by Open2view.com

13 Olive Close

Bay of Plenty
4
2
N/A
N/Asqm
888sqm
13 Olive Close Bay of Plenty
Auction
Wednesday 11th March - 12:00PM
proudly marketed by
Bower Real Estate
Plaster over Brick - Family Haven
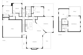
Bring your family and settle straight into a home that has been refreshed, showcasing clean, modern lines and a fresh, contemporary feel from the moment you walk through the door. Designed with family living in mind, the spacious open-plan kitchen, dining and family area is complemented by a separate lounge, creating flexibility for everyday life and entertaining alike. All living spaces flow effortlessly out to a private patio and deck, making it the perfect spot for relaxed gatherings or quiet evenings at home. Accommodation is generous, with four double bedrooms, including a master suite positioned on the upper level, the master bedroom is featuring its own private balcony a pleasant space to unwind. This private retreat also features an office area and is ideal to work from home. Tucked away at the end of a quiet cul-de-sac, gives extra space for the children to zoom around on their bikes and the fully fenced generous section of 888m2 gives more room to play in their own environment. . Outside, the backyard is a true blank canvas. Whether you dream of planting a garden, or simply keeping it low-maintenance and easy-care, the choice is yours. Set in the heart of Omokoroa, you'll enjoy the warmth of a thriving seaside community, known for its friendly village feel, coastal walkways and exciting growth, including a new shopping precinct and ongoing development. This is a move-in-ready home where buyers can simply unpack, settle in and enjoy everything this home " and this lifestyle " has to offer.
Question
Location
Upload by Brodie Geerlings
Bay of Plenty
This property was photographed by