Realestateforsaletauranga

powered by Open2view.com

103 Warner Road

Bay of Plenty
4
1
N/A
N/Asqm
2095sqm
103 Warner Road Bay of Plenty
proudly marketed by
Bower Real Estate
Live the Dream, Let the Children Play & Finally Breathe
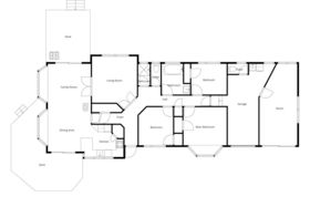
Have you dreamed of having a lifestyle with enough of your own land, where you can grow veggies, create a 'man shed', park the boat, trailer, and extra vehicles, and watch your children play outdoors as they really enjoy their lives? Now, you can finally make it happen. This exciting property offers so much of what you have hoped for. It is a great size. Big enough to feel relaxed and free, but not so large that you are a slave to the property. This is the perfect balance. It is also affordable, unlike so many other lifestyle properties that are out of reach. The neighbouring properties are the next level, but you won't have to pay crazy money to live in this desirable area. And yes, it is brick! With attractive cedar highlights, plus the roof has been replaced, so not only does it look striking, it gives you the confidence and security that comes with brick and a modern iron roof. Four spacious bedrooms provide flexibility for growing families. One is privately set off to the side near an additional toilet/washroom. it is the ideal space for teenagers, guests, or those wanting their own space. And yes, for those of you who like to add value, the plumbing is already installed and designed for an extra bathroom. Your children will thrive in their younger years, as it is zoned for the sought-after Oropi School, and you will be pleased to know the high school buses can stop at the gate. There is so much space, and the second separate living room is such an advantage. These owners have adored living here for over 25 years, but now is the time to let the next family enjoy this magical home. Act quickly, as property like this gets scooped up by people knowing they can create happy memories. It's the beautiful leafy gardens, the ideal size, solid materials, popular location, and the right price range. So, escape to the country and create the lifestyle you've always imagined. Come to the open home or call Kath now for a private viewing. The Property Files are available by copying this link into your browser, add your details, and it will be sent to you: https://www.propertyfiles.co.nz/property/RX4892219
Question
Location
Upload by Klara Langova
Tauranga/Papamoa/Mount